Trg golobarskih žrtev 8
5230 Bovec
Občina Bovec je s proračunom leta 2019 sprejela investicijo izgradnje Gasilskega doma z večnamensko dvorano Srpenica. Gradbeno dovoljenje je bilo izdano Gasilskemu društvu Srpenica, Občina Bovec pa je s pridobitvijo služnosti na zemljiščih spremenila tudi gradbeno dovoljenje, tako da je soinvestitor gradnje.
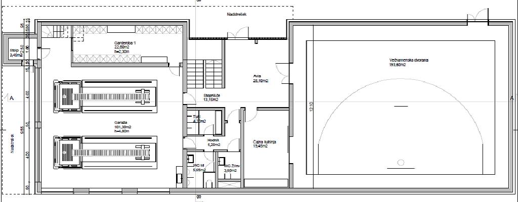
»Občina Bovec je izvedla javno naročilo za gradnjo in izmed treh prejetih ponudb izbrala najugodnejšega izvajalca, podjetja VG5 iz Ljubljane. Z njimi je bila 5.7.2019 podpisana pogodba. Vrednost GOI del znaša 954.488,88 EUR brez DDV oz. 1.164.476,43 EUR z DDV, in je trenutno največja investicija v teku v občini Bovec. Investicija obsega samó izgradnjo objekta, brez športnega igrišča, ki obsega gasilski dom, večnamensko dvorano, več pisarn, ki bodo namenjene gasilcem, krajevni skupnosti in drugim društvom in vse potrebne spremljevalne prostore, izvedbo in financiranje gradnje pa je seveda potrdil tudi OS Občine Bovec,« pove župan Občine Bovec Valter Mlekuž.
K izvedbi del je izvajalec pristopil 10. 7. 2019, do tega trenutka pa zelo hitro in kakovostno izvaja načrtovana dela. Rok izgradnje je 31. 7. 2020.
Predsednik gradbenega odbora je Danijel Krivec, ki je za PGD Srpenica pripravil tudi Dokument identifikacije investicijskega projekta (DIIP) oziroma vse potrebno za pridobitev gradbenega dovoljenja.
Razlogi za investicijo so jasni. Sedanji objekt je namreč premajhen za primerno izvajanje gasilske dejavnosti, objekt pa ne ustreza standardom za javne objekte. Na obstoječi lokaciji objekta praktično tudi ni mogoče izboljšati.
»Ker pa nova lokacija omogoča izgradnjo večjega objekta in nadomesti starega, je predvidena tudi večnamenska dvorana, ki je namenjena gasilskemu društvu v primeru večjih naravnih nesreč, drugim društvom, krajanom, drugim uporabnikomiz Srpenice, Žage in Loga Čezsoškega pa tudi za druge potrebe v Občini Bovec, «pove predsednik gradbenega odbora Danijel Krivec.
Objekt bo služil v prvi vrsti kot prostor za opremo, s katero razpolagajo ustanove, ki so v občini zadolžene za izvajanje aktivnosti na področju zaščite in reševanja. Novi prostori bodo omogočili kvalitetno skrb za opremo in poenostavili in skrajšali čas za aktiviranje in vključevanje v reševalne akcije.
»V našem primeru vidimo posebno usklajenost z medgeneracijskimi in sonaravnimi razvojnimi cilji, ki uveljavljajo načela trajnosti kot temeljna kakovostna merila na vseh področjih razvoja, vključno s ciljem trajnostnega obnavljanja prebivalstva in preprečevanjem razvojne izključenosti posameznih področij države,« še doda Krivec.
Zapisal: MILAN ŠTULC
Foto: ARHIV GRADBENEGA ODBORA PGD SRPENICA